Projekte
Ihr Projekt, meine Leidenschaft:
Kunden aus ganz Bayern und viele erfolgreiche Projekte sind die beste Referenz.
Kunden aus ganz Bayern und viele erfolgreiche Projekte sind die beste Referenz.
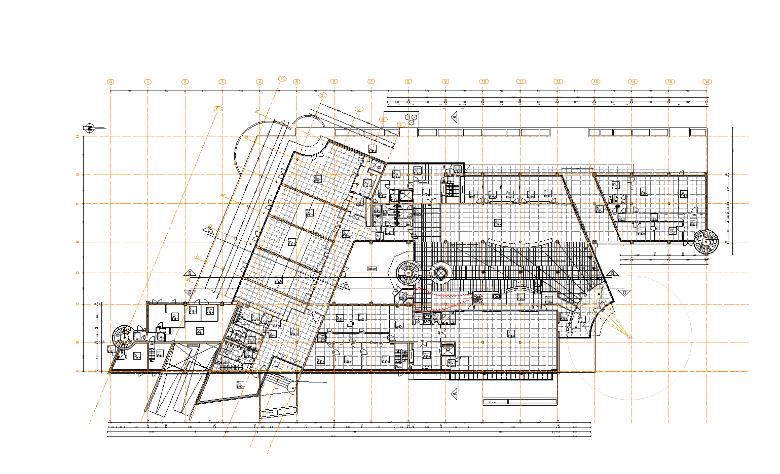
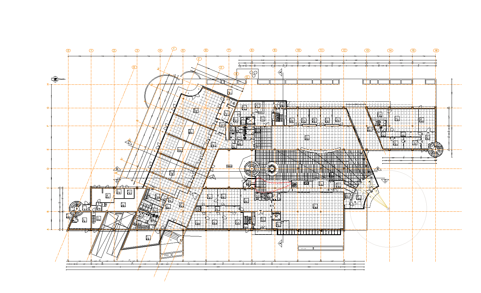
Umbau der Kreissparkasse zum Landratsamt Ebersberg
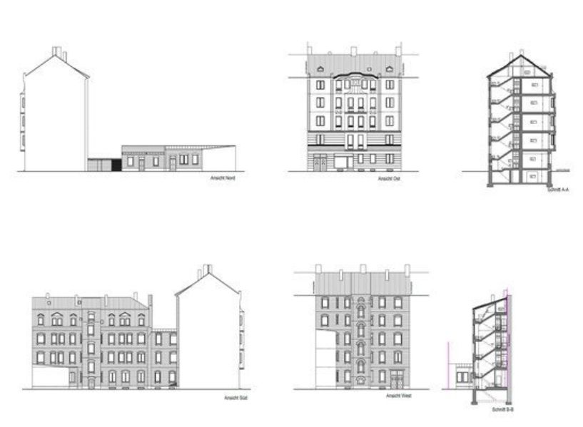
Aufmaß und Erstellung eines Bestandsplans

































